中古一戸建て 川西市丸山台3丁目
所在地
川西市丸山台3丁目
1,780万円
38.82坪
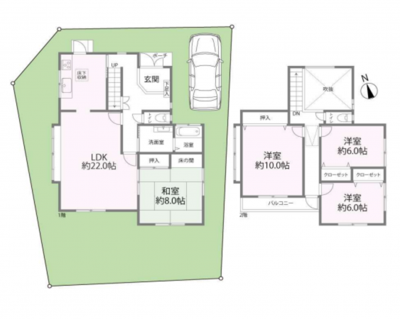
4LDK
物件概要
- 交通
-
能勢電鉄妙見線 バス10分乗車 バス停カリヨンの丘 まで 徒歩2分
- 接道状況
-
北側 公道6.2m 間口約10.4m
公道6.1m 間口約13.1m - 土地面積
- 199.88㎡ (60.46坪)
- 建物面積
- 128.35㎡ (38.82坪)
- 築年数
-
1996年
(平成8)
7月
築29年 - 建ぺい率
- 50%
- 容積率
- 80%
- 土地権利
- 所有権
- 構造および階数
- 木造 地上2階建
- 小学校区
- 北陵
- 中学校区
- 東谷
- 私道負担
- 無
- 地目
- 宅地
- 現況
- 居住中
- 引渡時期
- 相談
- 駐車場
- 有
- 上水道
- 下水道
- ガス
- 都市計画
- 市街化区域
- 用途地域
- 1種低層
- 設備・条件
- 備考
- 取引態様
- 仲介
