中古一戸建て 川西市新田1丁目
所在地
川西市新田1丁目
1,220万円
20.53坪
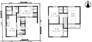
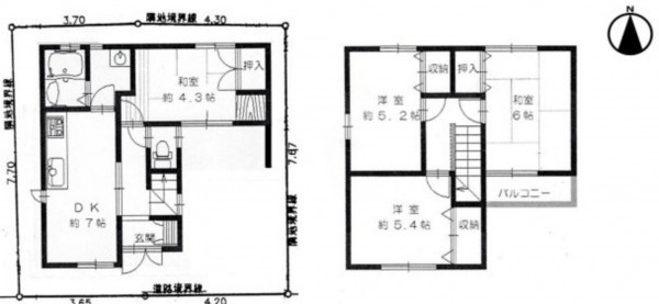
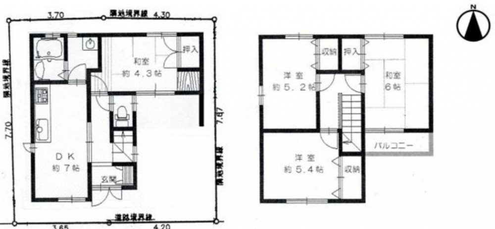
4DK
☆セールスポイント
室内は大変きれいです!!
●土地面積 60.95㎡
●南側道路
周辺環境
●業務スーパー川西店 徒歩12分
●万代 多田店 徒歩5分
●ドン・キホーテ 川西店 徒歩20分
物件概要
- 交通
-
能勢電鉄妙見線 多田駅 まで 徒歩7分
- 接道状況
- 南側 私道 間口約7.8m
- 土地面積
- 公簿 60.95㎡ (18.43坪)
- 建物面積
- 67.90㎡ (20.53坪)
- 築年数
-
2001年
(平成13)
3月
築24年 - 建ぺい率
- 60%
- 容積率
- 200%
- 土地権利
- 所有権
- 構造および階数
- 木造 地上2階建
- 小学校区
- 多田 ( 650m )
- 中学校区
- 多田 ( 750m )
- 私道負担
- 地目
- 宅地
- 現況
- 空
- 引渡時期
- 相談
- 駐車場
- 有
- 上水道
- 公共
- 下水道
- 公共
- ガス
- 都市計画
- 市街化区域
- 用途地域
- 2種中高
- 設備・条件
- 備考
- 取引態様
- 仲介
