中古一戸建て 川西市萩原台西3丁目
所在地
川西市萩原台西3丁目
1,949万円
43.76坪
6LDK
☆セールスポイント
6LDKで全居室6帖以上という希少物件!!
●大家族はもちろん、仕事部屋や趣味部屋がほしい方にもおすすめ♪
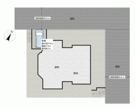
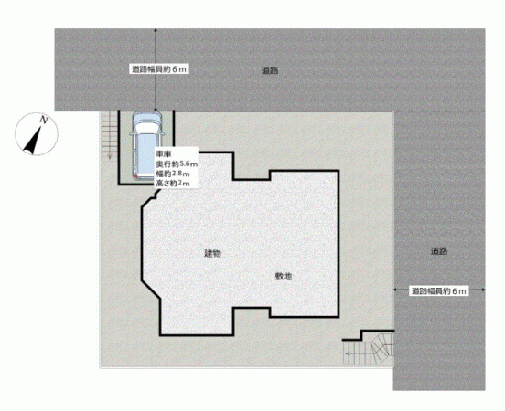
●北東角地で隣家と接地が少ないため、プライバシーが守られやすく開放感があります!
●前面道路6m以上なので車の出し入れもスムーズに
●南にあるお庭はガーデニングや夏場のプール遊びなど、おうちアウトドアに♪
周辺環境
●コープこうべ コープミニ萩原台 徒歩8分
●ドラッグストア ライフォート 鶯が丘店 徒歩8分
●ローソン 川西錦松台店 徒歩10分
物件概要
- 交通
-
能勢電鉄妙見線 鶯の森駅 まで 徒歩18分
- 接道状況
-
北側 公道6m
東側 公道6m - 土地面積
- 190.99㎡ (57.77坪)
- 建物面積
- 144.68㎡ (43.76坪)
- 築年数
-
1982年
(昭和57)
2月
築44年 - 建ぺい率
- 50%
- 容積率
- 80%
- 土地権利
- 所有権
- 構造および階数
- 木造 地上2階建
- 小学校区
- 明峰 ( 180m )
- 中学校区
- 明峰 ( 1000m )
- 私道負担
- なし
- 地目
- 宅地
- 現況
- 空
- 引渡時期
- 即時
- 駐車場
- 上水道
- 公共
- 下水道
- 公共
- ガス
- 都市ガス
- 都市計画
- 市街化区域
- 用途地域
- 1種低層
- 設備・条件
- カウンターキッチン、シャンプードレッサー、洗浄便座、追い焚き、床下収納、トイレ2箇所、庭、角地
- 備考
- 取引態様
- 仲介
