中古一戸建て 川西市湯山台2丁目
所在地
川西市湯山台2丁目
6,850万円
84.10坪
4LDK
☆セールスポイント
ハイグレード×ラグジュアリーな邸宅!!
●地下には居住スペースに劣らない広さの車庫があり、趣味用としても大活躍♪
●角地で玄関上は吹き抜けになっているので通風・採光抜群!外観以上の開放感を味わえます!
●LDKは延べ30帖超え!大理石で洗練された上質な空間です♪
周辺環境
●コープこうべ コープミニ萩原台 徒歩25分
●ミニストップ 川西西多田店 徒歩21分
物件概要
- 交通
-
阪急宝塚線 川西能勢口駅 バス20分乗車 バス停湯山台 まで 徒歩3分
- 接道状況
-
西側 公道6.3m 間口約8m
北側 公道6m 間口約10m - 土地面積
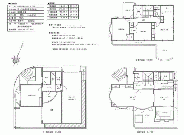
- 公簿 190.42㎡ (57.60坪)
- 建物面積
- 278.04㎡ (84.10坪)
- 築年数
-
2000年
(平成12)
9月
築25年 - 建ぺい率
- 50%
- 容積率
- 80%
- 土地権利
- 所有権
- 構造および階数
- 木造 一部RC(鉄筋コンクリート) 造 地下1階 地上2階建
- 小学校区
- 明峰 ( 1700m )
- 中学校区
- 明峰 ( 600m )
- 私道負担
- なし 無
- 地目
- 宅地
- 現況
- 空
- 引渡時期
- 即時
- 駐車場
- 有 普通5台
- 上水道
- 公共
- 下水道
- 公共
- ガス
- 都市ガス
- 都市計画
- 市街化区域
- 用途地域
- 1種低層
- 設備・条件
- システムキッチン、洗浄便座、1BOX駐車可、駐車場2台分、駐車場3台分、トイレ2箇所、シューズインクローゼット、納戸
- 備考
- 取引態様
- 仲介
