新築一戸建て 川西市火打2丁目
所在地
川西市火打2丁目
4,680万円
28.67坪
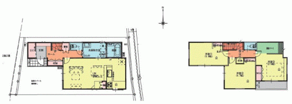
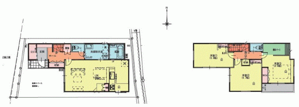
3LDK
☆セールスポイント
2026年4月完成!ピカピカの新築物件!!
●食洗機や浴室乾燥などフル装備の水回り♪賢く活用して家事効率を格段にアップ!
●駅までの道中に大型商業施設が点在していて思わず歩きたくなる生活導線♪
●川西市内でもフラットに移動できるエリアなので自転車やベビーカーでも移動もラクラク!
周辺環境
●キセラ 川西 徒歩4分
●ローソン 川西火打二丁目店 徒歩5分
●関西スーパー 川西店 徒歩7分
物件概要
- 交通
-
阪急宝塚線 川西能勢口駅 まで 徒歩14分
- 接道状況
- 西側 公道4m
- 土地面積
- 公簿 87.03㎡ (26.32坪)
- 建物面積
- 94.80㎡ (28.67坪)
- 築年数
- 2026年 (令和8) 4月
- 建ぺい率
- 60%
- 容積率
- 200%
- 土地権利
- 所有権
- 構造および階数
- 木造 地上2階建
- 小学校区
- 川西北 ( 500m )
- 中学校区
- 川西 ( 600m )
- 私道負担
- あり (4.10㎡) 有 4.1
- 地目
- 宅地
- 現況
- 空
- 引渡時期
- 即時
- 駐車場
- 有
- 上水道
- 公共
- 下水道
- 公共
- ガス
- 都市ガス
- 都市計画
- 市街化区域
- 用途地域
- 1種住居
- 設備・条件
- システムキッチン、カウンターキッチン、食器洗浄乾燥機、シャンプードレッサー、浴室乾燥機、モニタ付インターホン、洗浄便座、追い焚き、トイレ2箇所
- 備考
- 取引態様
- 仲介
