マンション ヴェルビュ川西
所在地
川西市加茂1丁目
3,480万円
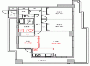
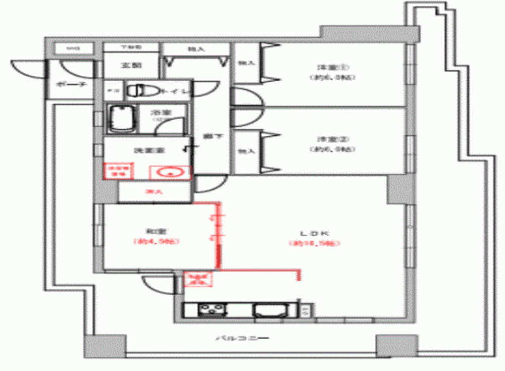
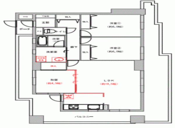
74.05m²
3LDK
☆セールスポイント
●2025年12月フルリノベーション済!!
●角部屋、3面バルコニー♪
●水回り設備一新!
周辺環境
●万代 南花屋敷店 徒歩9分
●ウエルシア川西加茂店 徒歩8分
物件概要
- 交通
-
福知山線 川西池田駅 まで 徒歩8分
- 専有面積
- 壁芯 74.05㎡
- バルコニー面積
- 43.25㎡
- バルコニー方向
- 所在階/階数
- 4階/6階
- 築年数
-
1997年
(平成9)
3月
築28年 - 建ぺい率
- 容積率
- 土地権利
- 所有権
- 構造および階数
- RC(鉄筋コンクリート) 造 地上6階建
- 総戸数
- 29戸
- 小学校区
- 加茂 ( 1100m )
- 中学校区
- 川西南 ( 1500m )
- 地目
- 現況
- 空
- 引渡時期
- 相談
- 駐車場
- 空有
- 駐車場月額
- 管理形態
- 全部委託
- 管理方式
- 管理人日勤
- 管理会社
- 管理費
- 15,500円
- 修繕積立費
- 25,920円
- 上水道
- 公共
- 下水道
- 公共
- ガス
- 都市ガス
- 都市計画
- 用途地域
- 2種中高
- 設備・条件
- システムキッチン、食器洗浄乾燥機、シャンプードレッサー、洗浄便座、追い焚き、モニタ付インターホン、オートロック、角部屋、エレベーター
- 備考
- 取引態様
- 仲介
